Proyección para 3 pisos más azotea. Ubicación: Urbanización Santa María – Calle Los Alhelies Manzana A1 Lote 12, Carabayllo
Referencia: Cerca de parques y de la Av. Santa María.
Medidas del terreno:
Frente: 6.00 ml | Fondo: 15.9 ml
Área de terreno: 94.98 m²
Área construida: 88.97 m²
Casa con estructuras: columnas, techos y dos pisos construidos
Listos para acabados finales a tu estilo
Primer piso ideal también para uso comercial (cuenta con baño y acceso independiente)
Declaratoria de fábrica inscrita
Proyección para construir hasta 3 pisos más azotea.
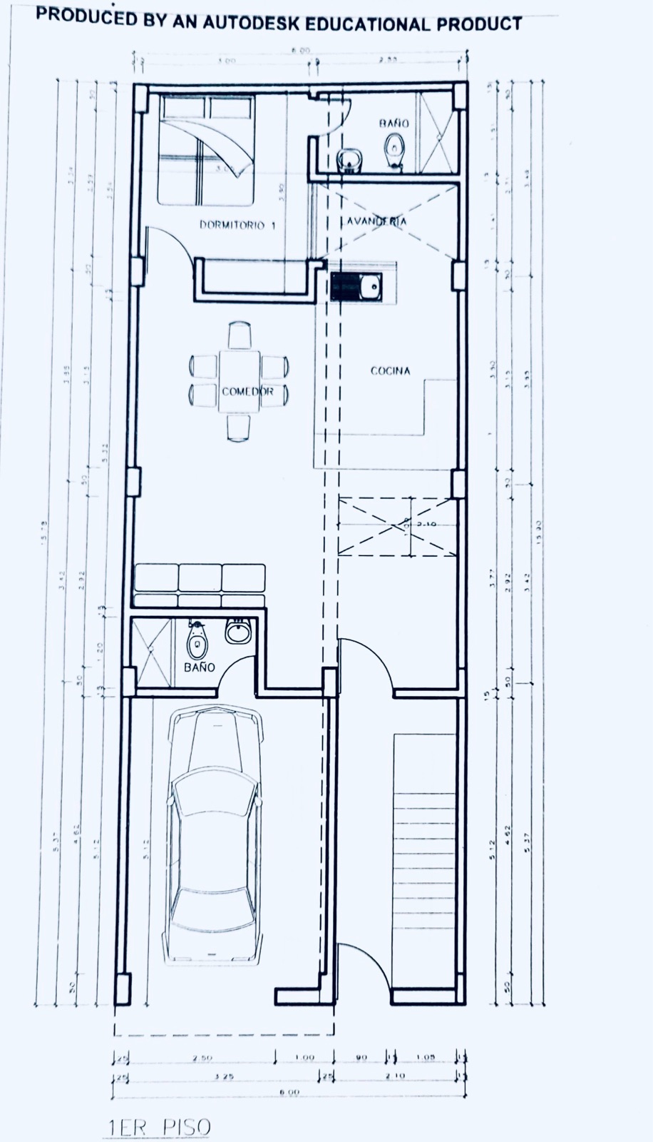
Distribución según planos:
Primer piso:
Área para cochera o local comercial con baño propio e ingreso independiente
-Sala comedor amplio
-Dormitorio con baño propio
-Cocina con lavandería
-Ambiente libre para estudio, almacén o sala de estar
Segundo piso:
-Dos dormitorios, cada uno con baño propio
-Medio baño adicional
-Cocina, lavandería, comedor y sala acondicionados como para un segundo departamento independiente
Características destacadas:
Declaratoria de fábrica inscrita
Proyección para construir hasta 3 pisos más azotea
Ideal para vivienda o negocio familiar
Zona con alta proyección de plusvalía (futura construcción de centro comercial cercano)
Propiedad inscrita – único propietario – documentación en regla
Se adjuntan planos referenciales de distribución
Zona con alta proyección de plusvalía por futura construcción de centro comercial cercano
Precio: S/. 182,000 mil soles
Agenda tu visita